Sliven online

Начало
Категории новини
Други категоризации
Новинарски сайтове
Източници на новини
- Бюро по труда-Сливен
- ВиК-Сливен
- ДейтаМплант
- МБАЛ "Д-р Ив.Селимински"
- МКБППМН Сливен
- Мед. център Миркович
- Митрополия Сливен
- ОУ "Е. Багряна" (XII)
- ОУ "П. Хитов" (VII)
- ОбСНВ, ПИЦ-Сливен
- Област Сливен
- Община Сливен
- Общински съвет - Сливен
- Обяви за работа – Сливен
- ПГ по Механотехника
- ПГПЗЕ "Захарий Стоянов"
- ППЗЦ - Сливен
- ПХГ "Дамян Дамянов"
- РЦИР
- Регион.Ист.Музей-Сливен
- СБР - Котел
- СУ "Й. Йовков" (X)
- Сп. "Текстил и облекло"
- Спортно у-ще "Д. Рохов"
- ТПП-Сливен
- Топлофикация-Сливен
- Туида Нюз
- ЮТРЛВК - Сливен
Търсене
Преводач
RSS
Сливен. Новини от източника. Последни новини
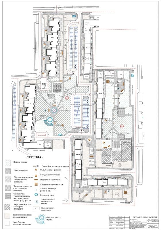
Технически схеми с детайли по благоустрояването на кварталите „Дружба“, „Българка“ и „Сини камъни“
Излъчване: Община Сливен преди 4 години, брой четения: 651
В прикачените файлове по-долу може да се запознаете по-подробно със схемите, свързани с благоустрояването на терени в част от трите най-големи квартала в Сливен - „Дружба“, „Българка“ и „Сини камъни“
Снимки
Файлове
Bulgarka [5.20MB]
Portable Document Format File
Druzhba [1.03MB]
Portable Document Format File
Siny kamuny [6.01MB]
Portable Document Format File